Ein neues Schulgebäude für 200 Kinder in Madagaskar
Mit 22’000 Franken können wir 200 Kindern ein neues Schulgebäude in Madagaskar, bauen. Dabei arbeiten wir mit «MadaClinics» zusammen. Wir freuen uns über jede Spende!
Die Schule im Dorf Maventibao besteht heute aus fünf Gebäuden. Vier davon bestehen aus Holz und Blech und sind äusserst instabil und in die Jahre gekommen. Gleichzeitig hat sich die Anzahl Schüler*innen in den vergangenen fünf Jahren von 100 auf 200 verdoppelt. Die Schule hat die Kapazitätsgrenze schon lange überschritten. Hinzu kommt, dass Naturkatastrophen zunehmen und diese den instabilen Gebäuden stark zusetzen. Zuletzt wurde im Januar 2025 eines der Gebäude zerstört. Das führt immer wieder zu Unterrichtsausfällen und erschwert den Schulbetrieb stark.
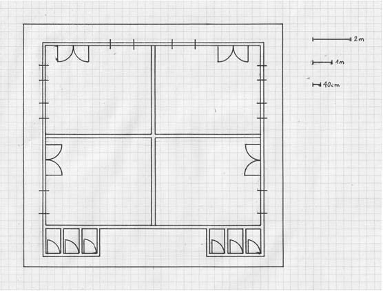
Ein neues Gebäude aus Beton mit vier Zimmern, Solar- und Toilettenanlagen
Das wollen wir ändern: Gemeinsam mit der madagassischen NGO MadaClinics wollen wir ein Gebäude aus Beton bauen. Dieses soll nebst zwei Klassenzimmer auch ein Lehrpersonenzimmer und ein Multimedia-Raum beinhalten. So können wir sicherstellen, dass auch die Lehrpersonen sich auf den Unterricht vorbereiten können (die Lebensumstände der Lehrpersonen in Madagaskar machen dies sehr schwer). Mit dem Multimedia-Raum kann die Schulbildung ausserdem an die heutigen pädagogischen Anforderungen angepasst werden. Hier sollen etwa auch Bücher, Mal-/ und Spielsachen zur Verfügung stehen. Nach Möglichkeit sollen hier auch technische Geräte einsetzbar sein.
Ausserdem sollen auch Toilettenanlagen entstehen. Heute gibt es bei der Schule keine Toiletten oder Orte, an denen sich die Kinder waschen können. Bei über 200 Schulkindern eine Zumutung. Ausserdem soll die Schule mit Strom versorgt werden. Das wollen wir durch die Wiederverwendung einer alten Solaranlage sowie deren Ergänzung um neue Panels erreichen.




Zu den Kosten
Die Projektkosten belaufen sich insgesamt auf rund 21’000 Franken. Insgesamt haben wir 22’000 Franken als Spendenziel gesetzt, um auf mögliche Teuerungen oder zusätzliche Kosten reagieren zu können.
- Gebäude aus Beton, mit Türen und Fenstern sowie Dach mit Plafond und Aussenfarbe: MGA 52’355’000.00 (umgerechnet rund CHF 9424.-, Kurs vom 9.10.2025)
- Mobiliar (Stühle, Tische, Bänke, Wandtafeln): MGA 2’395’000.00 (umgerechnet rund CHF 430.-, Kurs vom 9.10.2025)
- Arbeitskosten (Schulhausbau, Transport des Materials ausser dem Sand wird von MadaClinics übernommen): MGA 27’680’000.00 (umgerechnet rund CHF 4980.-, Kurs vom 9.10.2025)
- Solarpanels: MGA 12’050’000 (umgerechnet rund CHF 2170.-, Kurs vom 9.10.2025)
- Schulmaterial: CHF 4000.-
Nebst dem Crowdfunding haben wir beim Kanton Basel-Stadt, der im Rahmen der Entwicklungszusammenarbeit solche Projekte unterstützt, 16’000 Franken beantragt. Ob wir dieses Geld bekommen oder nicht, erfahren wir ab Dezember 2025. Unabhängig davon sammeln wir per Crowdfunding bereits Geld, da wir zusätzlich zu den 16’000 Franken noch 6’000 Franken für die Umsetzung des Projekts benötigen.
Erfahrungen mit MadaClinics
Das Schulgebäude wäre bereits das zweite grosse Projekt, das wir gemeinsam mit MadaClinics realisieren. 2024 haben wir eine Solaranlage gebaut, die die Klinik mit Strom versorgt. Das hat rund 16’000 Franken gekostet. Aus Erfahrungen wie diesen und einer kontinuierlichen Zusammenarbeit seit 2020 wissen wir, dass wir mit «MadaClinics» einen Partner haben, auf den wir uns verlassen können. Nebst der Organisation vor Ort würden durch Mitarbeitende von MadaClinics so auch einige Arbeiten beim Schulhausbau übernommen werden.
Ausserdem könnten wir mit NLF Technology auf einen Techniker zurückgreifen, mit dem wir ebenfalls im Rahmen des Solarprojekts bereits zusammengearbeitet haben.
Diese Erfahrungen geben uns die Sicherheiten, die wir brauchen, wenn wir ein so grosses Projekt umsetzen wollen.
Das übergeordnete Ziel
Unser Ziel ist es, möglichst vielen Kindern den Schulbesuch in Maventibao zu ermöglichen. Unsere langjährige Zusammenarbeit und unsere Erfahrungen mit MadaClinics ermöglichen uns die Umsetzung dieses grossartigen Projekts. Wir freuen uns über jede Spende! Erzähle auch deinen Freund*innen und Verwandten vom Projekt.
Spenden für das neue Schulhaus
Spenden kannst du über GivenGain:
Spenden kannst du über GivenGain:
Alternativ kannst du uns auch über Twint spenden oder eine Überweisung machen, mit dem Vermerk «Schulprojekt». Oder wir können dir einen Einzahlungsschein zuschicken. Melde dich einfach übers Kontaktformular.
Ein neues Schulgebäude für 200 Kinder in Madagaskar
Mit 22’000 Franken können wir 200 Kindern ein neues Schulgebäude in Madagaskar, bauen. Wir freuen uns über jede …
CHF 5,617.-
Gesammelt
CHF 22’000
Ziel
Alternativ kannst du uns auch über Twint spenden oder eine Überweisung machen, mit dem Vermerk «Schulprojekt». Oder wir können dir einen Einzahlungsschein zuschicken. Melde dich einfach übers Kontaktformular.

